MAIN ASPECTS OF THE PROJECT
Casale Storico– S.Severino Marche (MC)
L’edificio risale, nella parte più antica, al XIV secolo quando fu costruito da un Cavaliere Ospitaliere spagnolo di rientro dalla Terra Santa dopo la disfatta cristiana e la tragica caduta di S. Giovanni d’Acri nel 1291.
La progenie del Cavaliere è poi rimasta proprietaria dell’immobile fino alla fine del XIX secolo. Nel corso del XV secolo, la struttura fu ampliata notevolmente e l’edificazione avvenne con le pietre appartenute al vicino castello in Aliforni, parzialmente in rovina.
Nel corso dei secoli si andò modificando ed ebbe sempre la funzione di casa colonica padronale, sia per la posizione quasi mediana nei pressi della strada che ancor oggi congiunge il paese di Aliforni e quello di Collicelli, che ne faceva un centro di riferimento per le comunità, sia per il fatto di essere appartenuta a nuclei familiari proprietari della maggior parte dei terreni e dei boschi siti nella zona circostante.
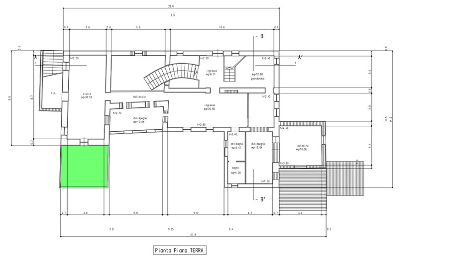
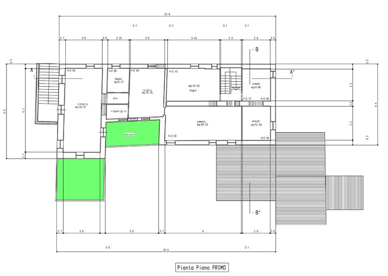
L’intervento di restauro conservativo in atto ha necessariamente tenuto conto della storia e della tipologia dei materiali. Le numerose travature portanti e quelle minori conformanti i solai, in quercia asciata secolare, le grosse pietre in arenaria perfettamente squadrate a mano costituenti l’intera struttura provenienti dal castello, i coppi antichi, le pianelle in cotto poste in più strati sovrapposti sia all’interno che all’esterno dell’edificio, a totale pavimentazione dell’ amplissima corte e all’atto dell’acquisto coperte da quasi un metro di terra e totalmente invase dalla vegetazione.
Ogni recupero ha visto l’impiego di manodopera specializzata in questo tipo di intervento e previsto l’utilizzo di tecniche in massima parte manuali.
L’idea che ha guidato il progetto è stata ispirata in prima analisi dalla storia del sito e dalla posizione dominante sulla vallata a circa 630 mt di altezza, elementi che ne hanno sempre sottolineato il carattere di ‘centro di riferimento’. Il panorama offre altresì la vista degli Appennini e del massiccio del Gran Sasso. Il terreno di proprietà è di circa 3 ha ed accoglie l’edificio in una forma quasi concava, circondandolo con prati, alberi da frutta, un vigneto, querce secolari, castagni e noci. Una falda acquifera a margine della proprietà completa la ricchezze naturalistiche.
Tale contesto è stato ritenuto ideale per un recupero di antichi elementi, esaltato da un’ambientazione naturale di impatto. Il rispetto del luogo e la volontà di dare continuità ad un ‘percorso’ sono gli elementi guida che ci hanno portato a strutturare il progetto con una logica di vivibilità totale degli ambienti intesa come ‘comunicazione’ (le porte sono di massima sostituite da ampi varchi, le ambientazioni sono visivamente interconnesse), ‘movimento’ (gli ambienti ampi consentono di camminare all’interno, senza ristrettezze, liberamente e di permanervi comodamente), ‘rilassatezza’ (i materiali recuperati, le aperture dei piani verso l’interno, il collegamento visivo continuo con il verde esterno trasmettono ‘emotività naturale’).
E questo contesto ha portato all’idea principale di una fruizione residenziale a sua volta scenario di momenti di business estrapolati dal loro alveo ordinario; una fruizione che permetta lo svolgersi di incontri, l’approfondimento di temi, la trattativa di affari in un’ambientazione riservata, naturale, genuina, in un clima generale di per se stesso rassicurante e positivo.
Obiettivo finale sarà quello di coniugare il concetto di abitazione, riconducibile al valore ‘persona’, con quello di relazione, riconducibile al valore ‘collettività’, focalizzando tale snodo su tematiche di business development.
PIANI
Piani
- Residenza Storica
- Natura in contaminata
- Vicino alle principali città e punti di accesso nevralgici
- Possibilità di atterraggio con elicottero
- Restauro conservativo ultimato al 70% per poter scgliere la destinazione del fondo ad uso Business (Spa, Centro Meeting, …) o ad uso residenziale (Villa)
- Contesto idilliaco in una delle più belle regioni d’Italia
- Perfetta esposizione solare
- Vista imprendibile
PHOTO GALLERY
Foto Galleria
Foto Galleria
Richiesta foto e ulteriori informazioni
Ulteriori immagini di qualità ed info sono a disposizione su richiesta tramite formulario di contatto
Posizione
Distanze
MARE
50KM | Circa 40 Min
STAZIONE SCIISTICA – Ussita Frontignano
80KM | Circa 70 Min
AEROPORTO
60 KM | Circa 50 Min
ROMA
230KM | Circa 3 Ore
AREZZO
180 KM | Circa 2.5 Ore
PERUGIA
114KM | Circa 2 Ore
MILANO
460M | Circa 5 Ore
Copyright © 2015 Developed by Onnext.

Italiano
English
Русский


















































































































